решение

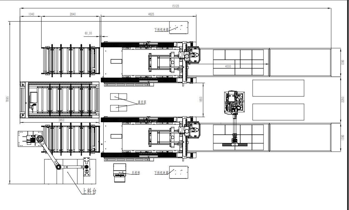
Фрезерный станок с ЧПУ M20 + линия обработки листового металла (лицевая и обратная стороны).
Эта производственная линия может выполнять такие операции, как сверление отверстий для петель, нарезание канавок и формовка на обратной стороне дверных панелей. Общий процесс выглядит следующим образом: подача материала на гидравлическую платформу — автоматическая подача на обрабатывающий станок — сверление отверстий для петель, пробивка отверстий, выравнивание канавок и обработка обратной стороны стеклянной двери — передача на переворачивающий станок для переворачивания двери — возврат в центр обработки дверных форм — обработка и вырезание формы двери на лицевой стороне — подача готового изделия на разгрузочную платформу с одновременной подачей материала — ручное наклеивание этикеток и сбор материала.
-

Портальная рама М12 для подачи материалов на линию по производству мебели 1-2
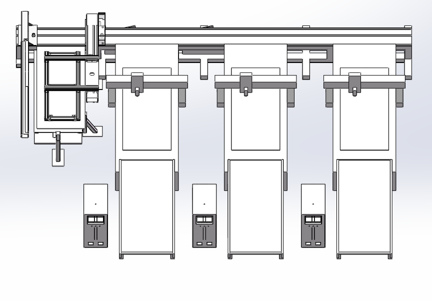
Портальный гравировальный станок с ЧПУ, обеспечивающий соотношение два к одному, представляет собой автоматизированную систему, использующую портальную конструкцию, способную одновременно осуществлять перемещение материалов и загрузку/выгрузку для двух станков с ЧПУ.
Общая схема производственной линии выглядит следующим образом: Загрузка портала – Маркировочная машина – Маркировка – Автоматическое распределение по обрабатывающим машинам с помощью интеллектуальной системы распределения на основе шкафов – Подготовка машины – Резка – Завершение обработки и перемещение на разгрузочную платформу – Извлечение роботизированной рукой.
Сама портальная конструкция обладает высокой жесткостью и устойчивостью. В сочетании с системой сервоуправления оборудование работает плавно с низким уровнем отказов, удовлетворяя производственные потребности предприятий в длительной непрерывной работе. Использование сервопривода и линейных направляющих обеспечивает высокую скорость работы и высокую точность позиционирования (повторяемость до ±0,5 мм – ±1 мм), что значительно сокращает время простоя станка.
--

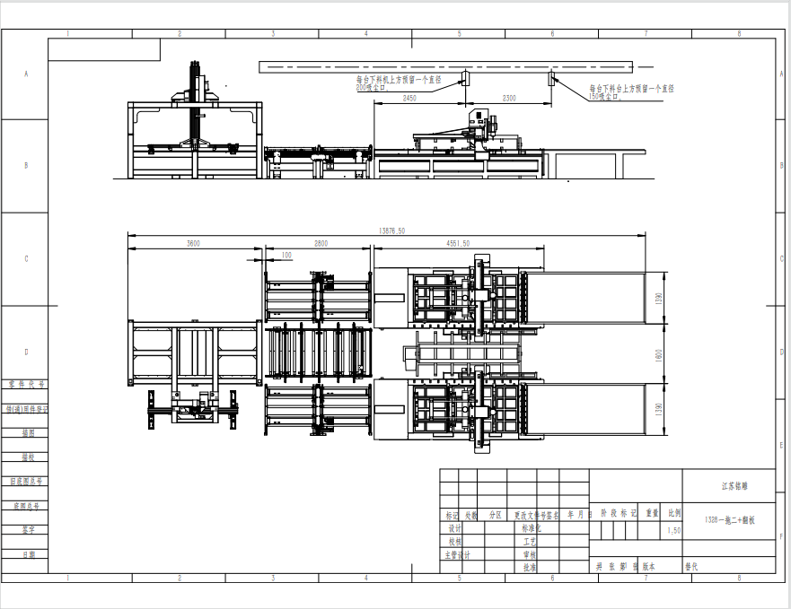
Портальная рама MD-8AL для подачи мебели на линию производства мебели 1-2 единицы + роботизированная паллетизация
Общий процесс производственной линии выглядит следующим образом: Загрузка портала --- Маркировочная машина --- Маркировка --- Автоматическое распределение по левому и правому столам ожидания с помощью интеллектуальной системы распределения шкафного типа --- Загрузка машины --- Сборка машины --- Резка --- Обработка и перемещение на разгрузочную платформу --- Паллетирование с помощью роботизированной руки
Весь процесс, от погрузки сырья до паллетирования готовой продукции, не требует ручного вмешательства, только небольшого количества персонала для контроля и помощи, что значительно экономит трудовые затраты и решает проблему нехватки рабочей силы.
Обрабатывающий центр «один к двум»: одна портальная система загрузки обслуживает одновременно два гравировальных станка с ЧПУ. Пока один станок обрабатывает материал, портальная система уже загружает другой, что значительно сокращает время ожидания станка.
--

система обработки данных веб-сайта
Разработанная на основе больших данных Google API система интегрирует все данные веб-сайта (каталог, вес, рейтинг, трафик, запросы), благодаря чему каждый веб-сайт имеет свою собственную базу данных ключевых слов и систему еженедельного мониторинга ключевых слов.
--

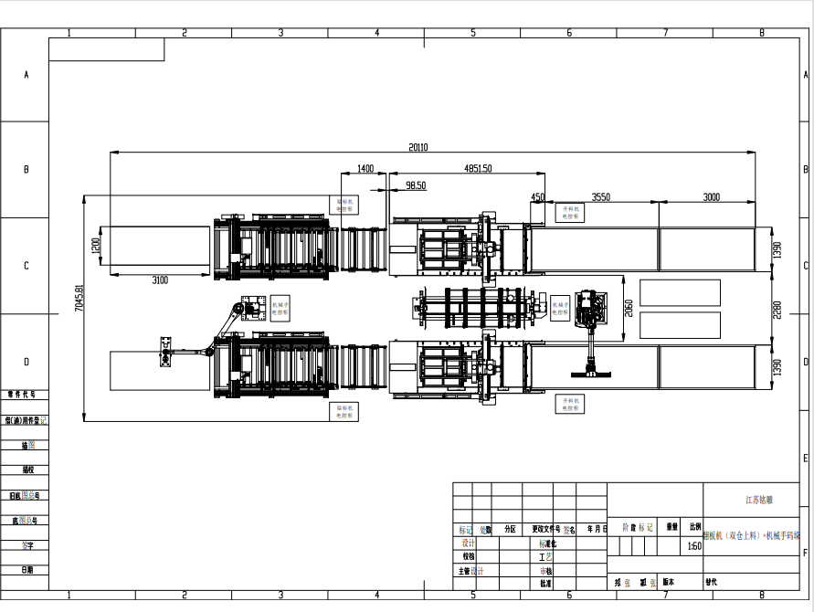
Интеллектуальный соединитель M12 для распиловки трех мебельных шкафов.
Общий процесс выглядит следующим образом: материал загружается на гидравлическую платформу — наносится маркировка — интеллектуальная система распределения автоматически распределяет материал по обрабатывающему станку — станок обрабатывает материал — он разрезается — после обработки материал перемещается на разгрузочную платформу для ожидания распределения интеллектуальной системой распределения, обеспечивая непрерывную и бесперебойную обработку листового материала.
Вся производственная линия полностью автоматизирована, для погрузки и общего контроля требуется всего один оператор, что полностью заменяет 2-3 сортировщиков и обработчиков, необходимых в традиционной модели. Это не только значительно экономит затраты на рабочую силу, но и освобождает работников от высокоинтенсивного, монотонного физического труда, снижая риски для здоровья на рабочем месте и упрощая управление.
--

M20 Одно-четырехсторонняя формованная дверная панель с интеллектуальным подключением
Производственная линия менее подвержена ошибкам и требует минимального вмешательства человека. Благодаря точному распределению технологических задач центральным контроллером обеспечивается единообразие и стандартизация таких параметров обработки, как форма и расположение отверстий с обеих сторон дверного полотна, что стабилизирует качество продукции.
Общий процесс выглядит следующим образом: материал подается на гидравлическую платформу – автоматически подается на станок обратной обработки – лазерная маркировка – сверление отверстий для петель, перфорация, выпрямительные канавки и обработка обратной стороны стеклянной двери – перемещение на станок для переворачивания – автоматическая транспортировка интеллектуальной тележкой Mingdiao в центр обработки формы двери – обработка формы и резка двери – готовое изделие перемещается на разгрузочную платформу и одновременно загружается.
Весь процесс автоматизирован и не требует вмешательства человека, что обеспечивает более высокую точность и эффективность, с производительностью 250-500 квадратных метров в день. (Конкретный дизайн зависит от сложности конструкции дверного полотна).
--
Автомат 1+1 Flip

1+2 Козловой кран для погрузки

1+2 Флип-машина
дуотодзи
Двухбункерная машина для подачи и переворачивания грузов
1+2
Кормление от одного до трех

Кормление от одного до четырех

Оставить сообщение
Отсканируйте и отправьте в WeChat/WhatsApp :