Номер изделия :
M20(1+4)Минимальный объем заказа (MOQ) :
1Происхождение продукта :
Nanjing, Jiangsu Province, ChinaВремя выполнения :
30thМасса :
11000KGПроизводственная линия панельной мебели M20 (1+4) и подробное описание

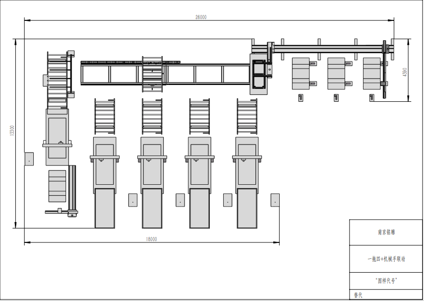
Процесс Линия по производству панельной мебели М20(1+4) Процесс выглядит следующим образом: материал загружается на гидравлическую платформу – автоматически загружается на станок обратной обработки – лазерная маркировка – сверление отверстий для петель, перфорация, выпрямительные канавки и обработка обратной стороны стеклянной двери – передается на станок для переворачивания – автоматически перемещается интеллектуальной тележкой Mingdiao в центр обработки дверных форм – обработка формы двери и резка – после обработки перемещается на разгрузочную платформу и одновременно загружается.
Весь листовой металл распределяется по различным обрабатывающим центрам с помощью интеллектуальных тележек Mingdiao. По сравнению с существующими на рынке конвейерными системами распределения, ее преимущества заключаются в следующем:
(1) Более простая структура и более короткий цикл установки и отладки
(2) Положение подачи станка напрямую контролируется сервомотором, следующим за фиксированными механическими координатами, что упрощает регулировку.
(3) Используется меньше датчиков и механических концевых выключателей, что приводит к упрощению схемы управления и облегчению последующего обслуживания.
(4) Более стабильные и эффективные, чем роликовые конвейеры, представленные на рынке.
---

Автоматизированный производственный процесс Линия по производству панельной мебели М20(1+4) В основном включает следующие этапы:
① Автоматическая подача и маркировка: Производственная линия начинается с автоматической подачи. После установки панелей оборудование автоматически наносит этикетки (или лазерную маркировку) и пробивает отверстия на обратной стороне дверных панелей.
② Автоматическая переворачивание и транспортировка: После обработки обратной стороны производственная линия использует автоматическую переворачивающую машину для переворачивания всей доски, после чего распределяет и транспортирует ее к машине, отвечающей за обработку лицевой стороны.
Обработка и резка лицевой стороны: В центре обработки лицевой стороны оборудование завершает формовку лицевой стороны дверных панелей и выполняет резку.
④ Автоматическая разгрузка: После завершения всех процессов машина автоматически перемещает обработанные материалы на разгрузочный стол, где они впоследствии сортируются людьми или роботизированными манипуляторами.
Технические параметры
| Мощность шпинделя | 9,0 кВт*1 |
| Скорость вращения шпинделя | 0-24000 об/мин |
| Рабочая скорость | 12-25 м/мин |
| Размеры обработки | 1220 x 2440 x 250 мм |
| Напряжение | 380 В/50 Гц |
| вес брутто | 11000 кг |
| Суммарная мощность | Примерно 5,0 кВт |
| Инструкции по гравировке | G-код, eng, uoo, NC, Tap |
| Рукоятка ножа/зажим | Он может зажимать φ3,175-12,7M |
детальные фотографии
Оставить сообщение
Отсканируйте и отправьте в WeChat/WhatsApp :